The Haydon Lifestyle
The Haydon Concierge

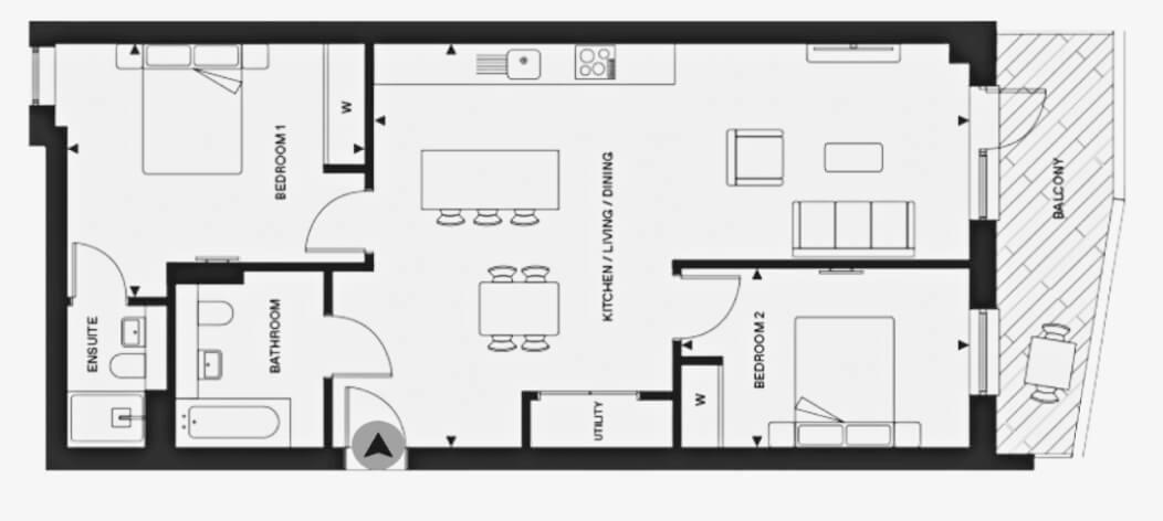
Floor
Plan

Property
Dimensions

Total internal area: 37.63 sq m - 405 sq

Studio: 7.02m x 5.05m - 23’ 0” x 16’ 7”

Bathroom: 2.20m x 2.00m - 7’ 3” x 6’ 7”

The Haydon Studio View

Perfectly placed in the heart of the City.

Amenities

  • 24hr Concierge and Residents’ Lobby
  • Cinema Room
  • Gym and Yoga Studio
  • Spa Pool
  • Residents’ Roof Terrace
  • Secure Underground Parking
The Haydon Tower Bridge

Additional Information

  • Building Warranty: BLP 10-Year Building Warranty
  • Local Authority: City Of London
  • Tenure: 460 Year Leasehold
  • Service Charges: Approx. £6.45 Psf
  • Ground Rent: Not Applicable
  • Parking: £75,000 (Not Included)
The Haydon Bottom Up View

Similarproperties

The Clarendon Studio View Property
Studio

The Clarendon

Studio apartments offering modern living at The Clarendon.

With impeccable design and state-of-the-art amenities, the studios are ideal for young professionals, students, and individuals seeking affordable living spaces close to London. Each studio features high-end finishes and a playful colour palette, providing a stylish and comfortable space to call home.

From £300,000 404 sqft Sold Out
View Property
View Property
1 Bedroom apartment

Fulton & Fifth

One bedroom apartments designed to maximise comfort and convenience.

Featuring quality fittings and finishes, ample natural light, and stunning views across Wembley Park and beyond, these apartments have spacious, open-plan living areas ideal for entertaining or unwinding. Kitchens are fully fitted kitchens with stone worktops and integrated appliances. Bedrooms include fully integrated wardrobes for ample storage and a serene ambience.

From £487,500 587 sqft Available
View Property
The Laundry View Property
1 Bedroom apartment

The Laundry

One bedroom apartments with clean lines and confident colours that reflect the stylish and independent spirit of London Fields.

Enjoy the convenience of a south or west-facing balcony, perfect for soaking in remarkable views. Living, dining, and kitchen spaces are designed with a keen attention to detail, combining the finest materials to create spaces that are not only functional, but truly a joy to spend time in.

607 sq. ft Sold Out
View Property